Ý tưởng thiết kế
Với mong muốn mang đến không gian linh hoạt và đa dạng công năng, DSDhome ra mắt giải pháp nhà lắp ghép thông minh với kỹ thuật sắp xếp từ module, dễ dàng lắp đặt, lên tầng và sở hữu thiết kế thẩm mỹ cao. Thiết kế nhà lắp ghép 37,4m2 là sự kết hợp hài hoà giữa nét hiện đại và truyền thống khi sở hữu không gian nghỉ dưỡng hiện đại và mái hiên gần gũi thiên nhiên. Module được sắp xếp sáng tạo và linh hoạt phù hợp với khổ đất vuông.

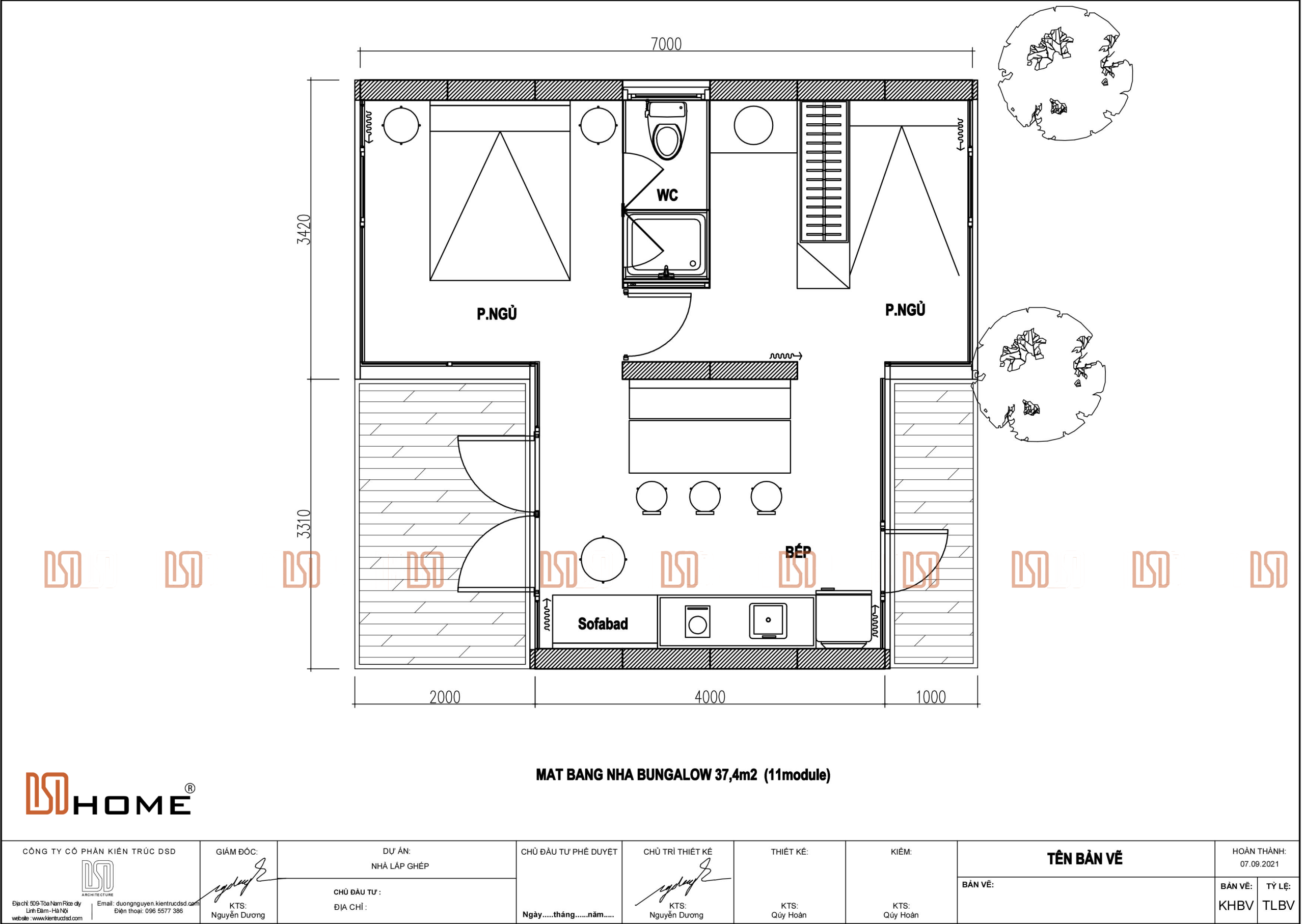
Cấu trúc Nhà lắp ghép 37,4m2 – 02
Diện tích 37,4m2 gồm 11 module ghép lại, đảm bảo nội thất đầy đủ.
- 1 phòng ngủ master: giường ngủ, tủ đựng vali và đèn đọc sách
- 1 phòng ngủ phụ
- 1 phòng thay đồ: tủ quần áo và lavabo
- 1 nhà vệ sinh: bồn cầu, vòi xịt, sen đứng và sen cây
- 1 phòng khách kết hợp bếp: sofabed, hệ thống tủ bếp trên, tủ bếp dưới và bàn ăn thuận tiện cho nhu cầu sinh hoạt

Vật liệu
Nhà lắp ghép 37,4m2 sử dụng vật liệu an toàn và thân thiện với môi trường.
- Khung thép
Hệ thống khung thép (1,4mm hay 1,8mm) được cấu tạo bởi module 1m2 có thể chịu lực tốt, tạo độ vững chắc cho công trình. Phần đáy được bọc kín bởi tôn chống han gỉ, chống côn trùng, chuột, bọ có thể làm tổ.
- Tôn sơn tĩnh điện / tôn panel/ tấm ốp nhựa cao cấp vân 3D.
( Khách hàng có thể lựa chọn 1 trong 3 loại vật liệu, phù hợp với nhu cầu đầu tư, thẩm mỹ mong muốn) .
Lớp tôn sơn tĩnh điện: vật liệu tiếp xúc trực tiếp với môi trường, bảo vệ mặt ngoài của công trình. Do đặc tính bền màu, nên khó bị phai màu bởi thời tiết và giữ được tính thẩm mỹ cho công trình.
Tôn Panel: gồm 3 lớp và được bọc tôn mạ kẽm bên ngoài, do đó có khả năng ngăn chặn tia cực tím của mặt trời. Tôn panel có thể hấp thụ nhiệt từ 8 – 20 độ C tạo không gian mát mẻ, ngoài ra còn có thể chống cháy, cách âm và tuổi thọ sử dụng rất cao.
Tấm ốp nhựa vân gỗ 3D: lớp phủ cao cấp theo tiêu chuẩn Nhật Bản với tỉ lệ 60% bột gỗ, 37% bột nhựa HDPE (nhựa nguyên sinh cao cấp), 3% phụ gia và màu, hạn chế được sự cong vênh, phai bạc màu. Đây là loại vật liệu xanh an toàn cho sức khỏe, thân thiện với môi trường.
- Bông khoáng: dày 50mm cách nhiệt, cách âm tốt, thân thiện với môi trường.
- Bạt chống thấm HPDE: giúp chống nước, chống thấm cho công trình. Màng HDPE không bị oxi hóa bởi môi trường axit, không bị xâm thực bởi hóa chất.
- Cemboard: KH có thể sơn lại màu tùy thích hay dán giấy dán tường hoặc ốp gỗ tùy sở thích.
- Mái nhà: Sử dụng tôn cliplock chống dột nước qua đầu vít, tràn nước qua khe, rãnh hở. Khả năng thoát nước và chống tràn của tôn cliplock gấp 2 lần so với tôn sóng thông thường.
- Kính: Sử dụng kính cường lực tạo vách ngăn cho công trình. Thiết kế 3 mặt tiền kính giúp mở rộng view, tăng trải nghiệm sống, hòa mình với thiên nhiên cho người dùng.
- Nội thất : Hai vật liệu sử dụng chính làm nội thất: Gỗ tự nhiên và Gỗ plywood phổ biến ở nước ngoài đảm bảo được vấn đề sức khỏe


Ứng dụng
Với kiểu thiết kế nhỏ gọn nhưng đầy đủ công năng này, nhà lắp ghép 37,4m2 là một lựa chọn hoàn hảo cho chủ đầu tư kinh doanh homestay, resort và cho những ai yêu thích không gian nghỉ dưỡng mới lạ.
Báo giá
Khu vực miền Bắc: 499.558.000 VNĐ.
Khu vực miền Nam: 557.400.000 VNĐ
Lưu ý: Giá của nhà lắp ghép 37,4m2 trên chưa bao gồm các trang thiết bị như tủ lạnh, tivi, máy giặt, điều hoà, bếp điện, thuế VAT và phí vận chuyển. Tùy thuộc vào mục đích và nhu cầu, DSDhome sẽ lắp đặt các hạng mục này theo mong muốn của chủ đầu tư.
Thời gian thi công và lắp đặt
Trong hợp đồng, DSDhome sẽ ghi rõ thời gian chính xác nhưng thời gian trung bình để xây nhà lắp ghép tại DSDhome là khoảng 20 ngày. Vì hầu hết công đoạn đều được thực hiện chủ yếu ở nhà xưởng DSDhome với đội ngũ chuyên nghiệp & máy móc hiện đại, nên thời gian thi công sẽ được rút ngắn đáng kể. Vậy nên chủ đầu tư sẽ không cần tốn quá nhiều công sức và thời gian cho việc giám sát công trình.
LƯU Ý: Nhà DSDhome đã bao gồm toàn bộ nội thất, móng, téc nước. Khách hàng cần chuẩn bị đầu chờ điện nước, bể phốt (hầm thoát WC) để đấu nối với hệ thống ống chờ sẵn của công trình.
Trên đây là toàn bộ thông tin về mẫu Nhà lắp ghép 37,4m2. Nếu khách hàng còn bất kỳ thắc mắc nào, hãy liên hệ với DSDhome để được giải đáp.
———————————
Công ty Cổ phần Kiến trúc DSD
Trụ sở: Số 11 Gamuda Leparc Yên Sở, Hoàng Mai, Hà Nội
Hotline: 096.124.9008
Xưởng phía Bắc: Thị trấn Thịnh Long, huyện Hải Hậu, Nam Định
Website: https://dsdhome.vn/









