Trong các công trình nhà lắp ghép hiện đại, đặc biệt là mô hình 2 tầng như homestay, bungalow hay nhà ở nghỉ dưỡng, khung thép G550 đang trở thành lựa chọn ưu tiên của nhiều nhà thầu nhờ khả năng chịu lực cao, thi công nhanh và tối ưu chi phí.
Thay vì phụ thuộc vào kết cấu bê tông truyền thống, việc sử dụng khung thép G550 2 tầng cho nhà lắp ghép giúp chuẩn hóa thi công, giảm tải trọng công trình và tăng hiệu quả triển khai dự án.
Tổng quan nhà lắp ghép 2 tầng từ khung thép G550
- Loại hình: Homestay – Bungalow
- Số tầng: 2 tầng
- Diện tích: 2 mặt sàn – 84m2
- Công năng: 2 phòng ngủ, 1 phòng khách, 1 vệ sinh
Thiết kế 2 tầng giúp tối ưu diện tích đất, tăng số lượng phòng mà vẫn đảm bảo không gian riêng tư.

Khung thép G550 – “Bộ xương” quyết định chất lượng công trình
Nếu kiến trúc là phần nhìn thấy, thì khung thép G550 chính là phần quyết định giá trị thực của ngôi nhà.
Toàn bộ công trình sử dụng hệ khung thép mạ kẽm cường độ cao, được thiết kế theo nguyên lý kết cấu tiền chế hiện đại, tối ưu chi phí – tiết kiệm thời gian – giải pháp thông minh của nhà đầu tư.
Cấu tạo chính của hệ khung thép G550
Toàn bộ hệ khung hoạt động như một “bộ xương linh hoạt”, vừa chắc chắn, vừa tối ưu vật liệu:
- Cột thép chịu lực: Truyền tải toàn bộ lực từ mái và sàn xuống móng, đảm bảo sự ổn định lâu dài
- Kèo mái thép nhẹ: Phân bổ lực đều, giúp công trình chịu được tác động của gió và mưa lớn
- Xà gồ thép G550:Là hệ đỡ cho mái và tường, hạn chế võng và biến dạng
- Liên kết bulong cường độ cao: Giúp tăng độ chính xác, dễ thi công và linh hoạt tháo lắp.

Góc nhìn kỹ thuật: Vì sao khung thép G550 vượt trội?
Trong lĩnh vực kết cấu xây dựng, con số “G550” là ký hiệu cho giới hạn chảy (yield strength) đạt 550 MPa, cao hơn nhiều so với các loại thép thông thường.
Xem thêm: Thép G550 tại siêu thị nhà lắp ghép DSD
Chi phí khung thép G550 – Bài toán kinh tế cho nhà đầu tư
Một trong những yếu tố quan trọng khiến khung thép G550 ngày càng được ưa chuộng chính là khả năng tối ưu chi phí ngay từ phần kết cấu – phần chiếm tỷ trọng lớn trong tổng ngân sách xây dựng.
Trong thực tế, khung thép G550 thường chỉ chiếm khoảng 25–35% tổng chi phí công trình, nhưng lại đóng vai trò quyết định đến độ bền và hiệu quả thi công.
Lợi thế về chi phí của khung thép G550:
- Giảm chi phí nền móng: Nhờ trọng lượng nhẹ hơn so với kết cấu bê tông, khung thép G550 giúp giảm tải trọng lên móng, từ đó tiết kiệm đáng kể chi phí thi công nền móng – đặc biệt hiệu quả tại các khu vực đất yếu hoặc địa hình đồi dốc.
- Tiết kiệm nhân công: Hệ khung được gia công sẵn tại nhà máy và lắp dựng bằng bulong, giúp giảm thiểu nhân công tại công trường và hạn chế sai sót trong quá trình thi công.
- Rút ngắn thời gian thi công: khung thép G550 cho phép thi công nhanh, đồng bộ và có thể hoàn thiện trong thời gian ngắn.

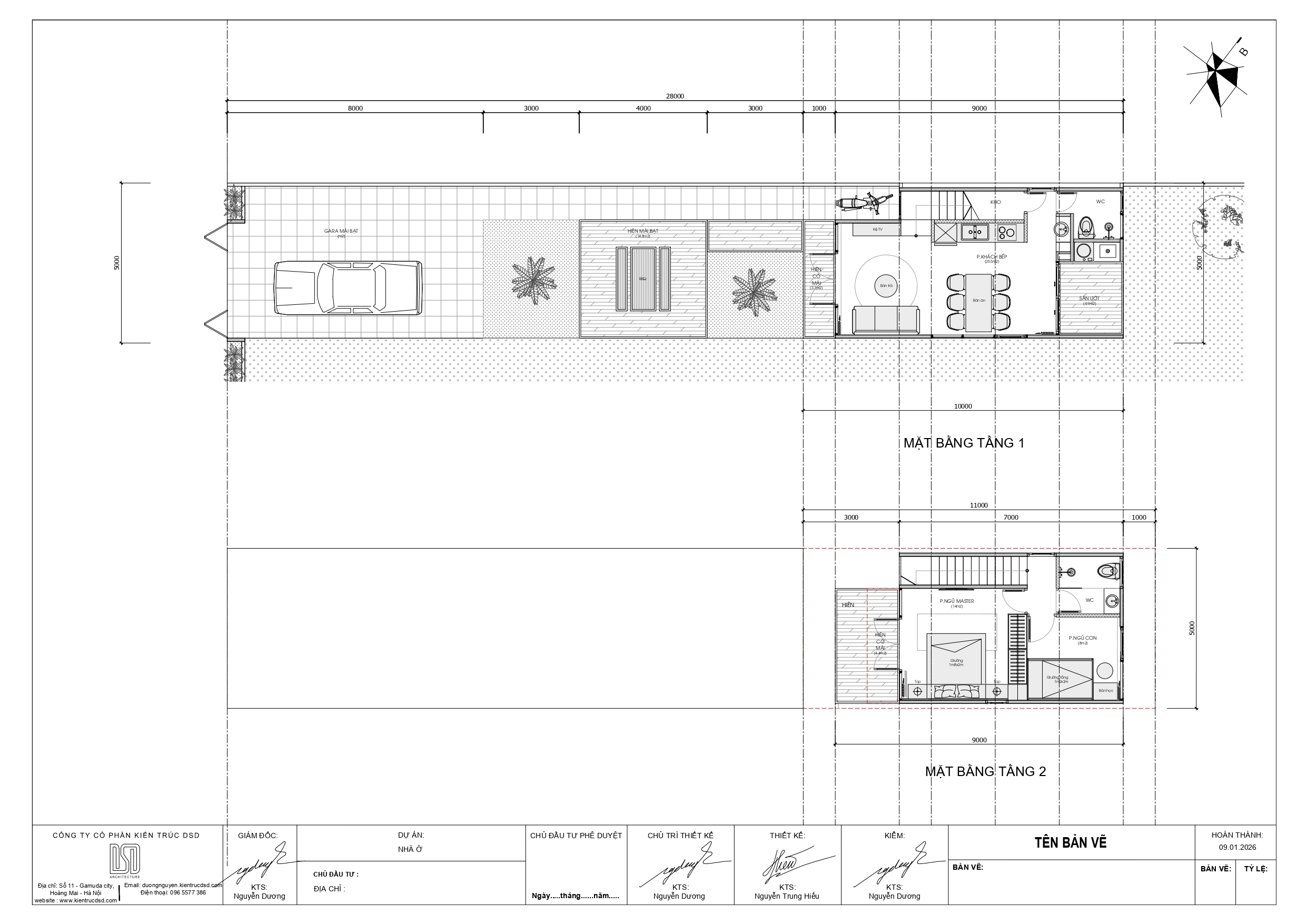
Nhà lắp ghép 2 tầng sử dụng khung thép G550 tại Lâm Đồng
Dự án nhà anh Dũng tại Lâm Đồng là một ví dụ tiêu biểu cho việc ứng dụng khung thép G550 trong công trình nhà lắp ghép 2 tầng.
Thông tin công trình:
- Loại hình: Homestay / Bungalow nghỉ dưỡng
- Số tầng: 2 tầng
- Công năng: 1 Phòng khách bếp; 2 Phòng ngủ; 2 WC, lavabo; 1 kho để đồ; Hiên mái đặc
- Mục đích: kinh doanh + nghỉ dưỡng
- Vị trí: Lâm Đồng – khu vực khí hậu mát mẻ, độ ẩm cao

Vai trò của khung thép G550 trong công trình:
- Đảm bảo kết cấu vững chắc cho 2 tầng
- Giúp thi công nhanh, phù hợp địa hình đồi dốc
- Tối ưu chi phí so với xây dựng truyền thống

Từ công trình, có thể thấy được khả năng ứng dụng linh hoạt nhưng vẫn đảm bảo tính thẩm mỹ, kỹ thuật của khung thép G550 dành 2 tầng cho nhà lắp ghép.
Có nên chọn khung thép G550 cho nhà lắp ghép 2 tầng không?
Đối với các công trình nhà lắp ghép 2 tầng, việc lựa chọn vật liệu kết cấu không chỉ ảnh hưởng đến độ bền mà còn quyết định trực tiếp đến tiến độ và hiệu quả thi công. Trong đó, khung thép G550 được xem là giải pháp tối ưu khi so sánh với phương pháp xây dựng truyền thống.
Lợi thế nổi bật:
- Tăng tốc độ thi công: Hệ khung được gia công sẵn theo bản vẽ kỹ thuật, khi đưa ra công trình chỉ cần lắp dựng, giúp rút ngắn đáng kể thời gian triển khai so với bê tông.
- Kiểm soát chi phí hiệu quả: Khung thép G550 giúp hạn chế phát sinh nhờ định lượng vật liệu rõ ràng, đồng thời giảm chi phí móng và nhân công.
- Linh hoạt trong thiết kế và thi công: Dễ dàng điều chỉnh kích thước, công năng hoặc thay đổi phương án bố trí mà không ảnh hưởng đến toàn bộ kết cấu.
- Tối ưu khả năng mở rộng dự án: Nhờ thiết kế dạng module, nhà thầu có thể triển khai nhiều căn cùng lúc hoặc mở rộng quy mô trong tương lai một cách nhanh chóng và đồng bộ.
Với những ưu điểm và lợi thế trên, câu trả lời chắc chắn là có!
Vì sao nên chọn khung thép G550 tại Siêu Thị Nhà Lắp Ghép DSD?
Siêu Thị Nhà Lắp Ghép DSD là thương hiệu thuộc DSD Group, được phát triển dựa trên nền tảng kinh nghiệm thi công thực tế từ DSD Home – đơn vị đã triển khai nhiều công trình nhà lắp ghép, homestay và dự án nghỉ dưỡng trên toàn quốc.
Không chỉ dừng lại ở việc cung cấp sản phẩm, DSD hướng đến giải pháp toàn diện, giúp khách hàng tối ưu từ vật liệu, chi phí đến hiệu quả sử dụng lâu dài
DSD siêu thị nhà lắp ghép có gì?
- Chủ động nguồn khung thép G550 chất lượng cao: Sản phẩm được kiểm soát chặt chẽ từ vật liệu đến gia công, đảm bảo độ bền, khả năng chịu lực và tính đồng bộ cho toàn bộ công trình.
- Minh bạch chi phí – dễ dàng kiểm soát ngân sách: Báo giá rõ ràng theo từng hạng mục, giúp khách hàng chủ động tài chính.
- Đa dạng nguồn nguyên vật liệu trọn gói dành cho nhà lắp ghép: mang tính đồng bộ chất lượng đảm bảo cho toàn bộ công trình.
- Nguồn gốc sản phẩm rõ ràng, toàn bộ sản phẩm đều có giấy chứng nhận kiểm định chất lượng đầy đủ, cam kết luôn mang đến sản phẩm chất lượng nhất tới khách hàng.
Ở Siêu thị nhà lắp ghép DSD không chỉ bán vật liệu, chúng tôi cung cấp giải pháp xây dựng hoàn chỉnh.

Câu hỏi thường gặp (FAQ)
Có thể xây nhiều căn homestay giống nhau bằng khung thép G550 không?
Hoàn toàn có thể. Khung thép G550 được sản xuất theo module, giúp dễ dàng nhân rộng nhiều căn với chất lượng đồng đều. Đây là giải pháp lý tưởng cho các mô hình homestay, bungalow hoặc resort cần mở rộng quy mô nhanh.
Nhà lắp ghép 2 tầng bằng khung thép có đảm bảo an toàn và chịu lực tốt không?
Có. Khi sử dụng khung thép G550 cường độ cao, hệ kết cấu hoàn toàn đáp ứng khả năng chịu lực cho công trình 2 tầng. Thiết kế khung được tính toán kỹ lưỡng về tải trọng, đảm bảo độ ổn định và an toàn trong quá trình sử dụng lâu dài.
Chi phí xây nhà lắp ghép 2 tầng có cao hơn 1 tầng không?
Chi phí sẽ cao hơn do tăng diện tích sử dụng và kết cấu, tuy nhiên vẫn tối ưu hơn so với nhà bê tông truyền thống. Đặc biệt, khi sử dụng khung thép G550, chi phí được kiểm soát tốt và giảm đáng kể thời gian thi công.
Khung thép G550 có thể tháo lắp hoặc di chuyển không?
Có. Nhờ sử dụng liên kết bulong thay vì hàn cố định, hệ khung có thể tháo lắp, di dời hoặc cải tạo khi cần thiết, giúp tăng tính linh hoạt cho công trình.
—————–
Liên hệ ngay với chúng tôi để được tư vấn chuyên sâu:
Hotline: 0961.569.001
Website: sieuthinhalapghep.com
Siêu thị Nhà lắp ghép DSDHome – Hệ sinh thái vật liệu và giải pháp xây dựng toàn diện
Để tạo nên một không gian sống bền vững và tối ưu, việc lựa chọn đúng vật liệu và đơn vị triển khai là yếu tố then chốt. Siêu Thị Nhà Lắp Ghép DSDHome mang đến giải pháp “All-in-one” cho nhà ở, homestay và các công trình nghỉ dưỡng.
Với hệ sinh thái đồng bộ từ vật liệu thép G550 đến vật liệu hoàn thiện, DSDHome không chỉ cung cấp sản phẩm mà còn giúp bạn rút ngắn thời gian xây dựng, tối ưu chi phí và dễ dàng hiện thực hóa không gian sống hiện đại.
———–
Công ty Cổ phần Đầu tư DSD Group
Trụ sở chính: Số 11, Gamuda Leparc Yên Sở, Hà Nội
Siêu thị nhà lắp ghép Miền Bắc: TDPS 7, Xã Hải Thịnh, Tỉnh Ninh Bình
Siêu thị nhà lắp ghép Miền Nam: 256 Độc Lập, Phú Hà, Phú Mỹ, TP. Hồ Chí Minh.
Tổ hợp căn mẫu và khu nghỉ dưỡng trải nghiệm phía Bắc: Xã Hải Thịnh, Tỉnh Ninh Bình
Nhà máy sản xuất: Xã Hải Thịnh, Tỉnh Ninh Bình (TT Thịnh long, Nam Định cũ)
Hotline: 096.1569.001
Website: https://sieuthinhalapghep.com/











